Kapitalanlage - Mehrfamilienhaus in der Universitäts- und Hansestadt Greifswald
Beschreibung
Zum Verkauf steht ein Mehrfamilienhaus mit drei Wohneinheiten, welches im Jahr 1933 erbaut wurde.
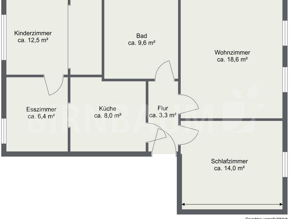
Im Erdgeschoss befindet sich eine Vier-Zimmer-Wohnung mit ca. 75 m², eine Drei-Zimmer-Wohnung mit ca. 61 m² ist im Obergeschoss und im Dachgeschoss eine Zwei-Zimmer-Wohnung, welche über eine Wohnfläche von ca. 46 m² verfügt. ...
Kaufpreis
€ 380.000,00
Überblick Objekt Nr. 00489_K
| Gesamtfläche | 215 m² |
| Grundstücksgröße | 655 m² |
| Anzahl Stellplätze | 5 |
| Status | vermietet |
| Frei ab | nach Vereinbarung |
| Zimmeranzahl | 9 |
| Heizungsart und Befeuerung | Zentralheizung, Gasheizung |
| Baujahr | 1933 |
| Kaufpreis | € 380.000,00 |
| Energieausweisart | Verbrauch |
| Energieausweis gültig bis | 2026-02-22 |
| Energieverbrauchkennwert | 137.00 |
| Primärenergieträger | GAS |
| Wertklasse gemäß EnEv 2014 | E |
| Baujahr | 1933 |
| Energieausweis-Jahrgang | ab 1.5.2014 |
| Gebäudeart | Wohngebäude |
| Provision/Courtage | Bei Abschluss eines notariellen Kaufvertrags ist eine Provision |
Status
vermietet
Lage
Das Objekt befindet sich in der aufstrebenden Universitäts- und Hansestadt Greifswald mit rund 60.000 Einwohnern. Die vielfältigen Kultur- und Bildungsangebote sowie die abwechslungsreiche Landschaft und gute Infrastruktur schätzen die Menschen, welche in Greifswald arbeiten und leben sehr an der dynamischen Stadt.
Von einem sehr guten Ruf profitiert die 1456 gegründete Universität Greifswald mit ihren Forschungseinrichtungen und der Universitätsmedizin. Hier sind ca. 10.000 Studenten sowie 6.000 Universitätsangehörige beschäftigt.
Ausstattung
Das Gebäude wurde im Jahr 1999 kernsaniert, inklusive Erneuerung der Treppen. Die Elektroanlage wurde in diesem Zuge ebenfalls komplett erneuert.
Die Ausstattung ist nutzungsorientiert und entspricht auch noch heute den üblichen Erfordernissen.
Instandhaltungen wurden seit der Kernsanierung fortlaufend durchgeführt.
Sonstiges
Wir bedanken uns für Ihr Interesse an der angebotenen Immobilie.
Nach Bekanntgabe Ihrer Postanschrift und Telefonnummer über das Kontaktformular senden wir Ihnen gern weitere Informationen mit dem ausführlichen Exposé zu und stehen Ihnen für eine Besichtigung oder eine Beratung gern zur Verfügung.
Ein Maklervertrag mit uns kommt durch schriftliche Vereinbarung oder durch die Inanspruchnahme unserer Maklertätigkeit auf Basis des Objekt-Exposés und unserer AGB zustande. Unsere Maklerprovision ist mit Abschluss eines Kaufvertrages verdient und fällig.
Alle Angaben sind ohne Gewähr und basieren ausschließlich auf Informationen, die uns von unserem Auftraggeber zur Verfügung gestellt wurden. Die BIRNBAUM Real Estate Management GmbH übernimmt keine Gewähr für die Vollständigkeit, Richtigkeit und Aktualität der hier gemachten Angaben.

































