Ryckblick - große Büro- oder Praxisfläche in unmittelbarer Nähe eines großen neuen Wohngebietes mit viel Potenzial

Beschreibung

Willkommen zu Ihrer neuen Geschäftsadresse in einem gepflegten Wohn- und Geschäftshaus in der charmanten Universitätsstadt Greifswald. Diese geräumige und gut unterhaltene Immobilie bietet Ihnen eine hervorragende Möglichkeit, Ihre Praxis oder Ihr Büro in einem aktiven und dynamischen Umfeld zu etablieren.

 

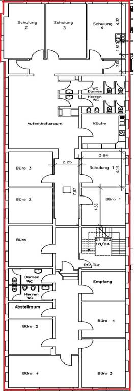
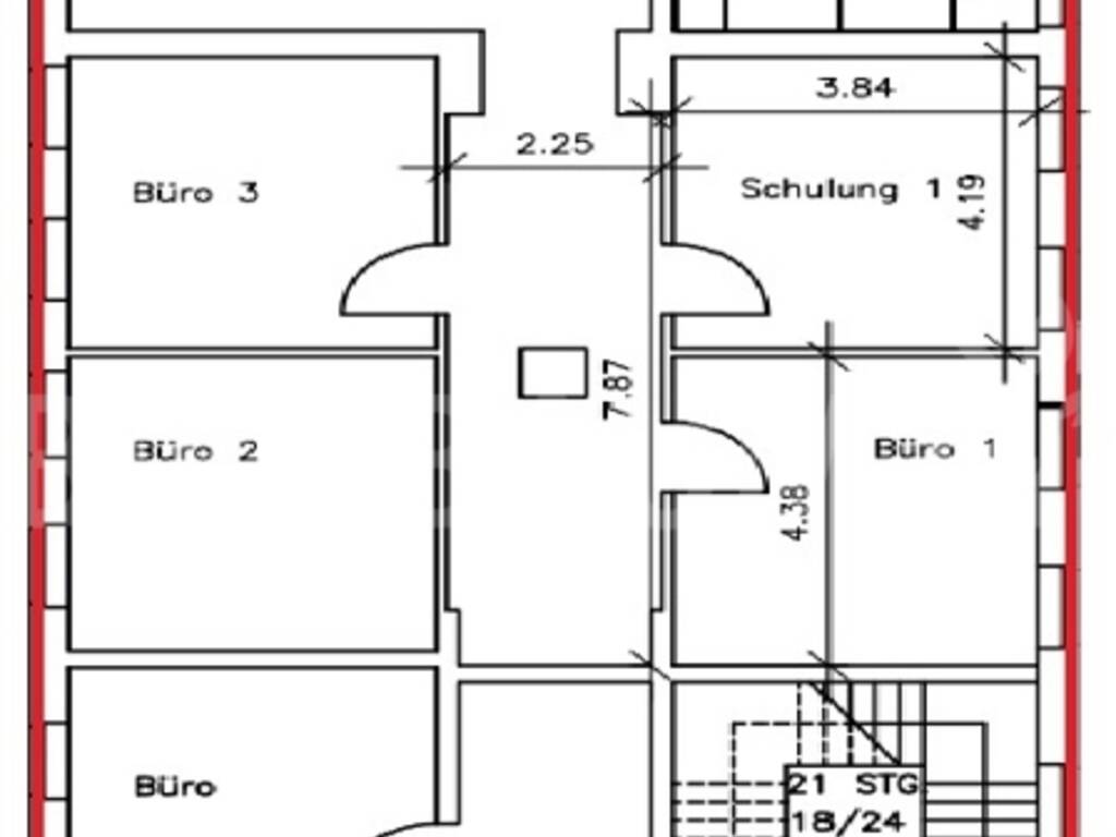
Die hier angebotene 399 m² große Gewerbefläche befindet sich im 1. Obergeschoss eines Wohn- und Geschäftshauses, direkt am Greifswalder Ryck mit Aussicht auf das Wasser, und überzeugt mit einer funktionalen Raumaufteilung mit insgesamt 14 großzügigen Räumen, Aufenthaltsraum, Abstellräumen und sanitären Einrichtungen für eine flexible Nutzungsmöglichkeit.

 

Alle Räume der Immobilie sind tagesbelichtet (Nord- und Südausrichtung).

 

Die linke Bürofläche wird vor Einzug des neuen Mieters renoviert. Es werden u.a. folgende Arbeiten durchgeführt: Erneuerung Bodenbelag und Türen, malermäßige Instandsetzung.

Überblick Objekt Nr. 00755_7 GE

Gesamtfläche399 m²
Bürofläche389 m²
Anzahl Stellplätze10
Zustandgepflegt
Statusfrei
Frei ab01.10.2025
Zimmeranzahl14
Heizungsart und BefeuerungZentralheizung, Gasheizung
BodenbelagPVC
Baujahr1994
Etage1
Nebenkosten€ 998,00
Nebenkosten inkl. Heizungja
EnergieausweisartVerbrauch
Energieausweis gültig bis2034-06-11
Energieverbrauchkennwert124.00
PrimärenergieträgerGAS
Wertklasse gemäß EnEv 2014D
Baujahr1994
Energieausweis-Jahrgangab 1.5.2014
GebäudeartGewerbe

Status

frei

Lage

Das Wohn- und Geschäftshaus befindet sich in einem begehrten Stadtteil der Universitiäts- und Hansestadt Greifswald, der nördlichen Mühlenvorstadt. Im näheren Umfeld entsteht gerade ein größeres Wohngebiet.

 

Die Gewerbeeinheit befindet sich in fußläufiger Nähe zur Greifswalder Innenstadt.

 

Der Standort ist ideal für Unternehmen, die Wert auf eine zentrale Lage und ein dynamisches Umfeld legen.

Ausstattung

Die Gewerbefläche verfügt über folgende Ausstattung:

 

• 14 unterschiedlich große Büroräume

• Abstellräume

• 2 x Damen- und Herren-WC's

• Fußbodenbelag: Vinyl und Fliesen

• Küche

• 10 PKW-Stellplätze á 45,00 €/Monat (in Gesamtmiete enthalten)

 

Bei den Mietkosten handelt es sich um Nettobeträge. Vorsteuerabzugsberechtigte Interessenten sind erwünscht.

 

Die Vermietung erfolgt provisionsfrei.

Sonstiges

Wir bedanken uns für Ihr Interesse an unserem Angebot.

 

Nach Bekanntgabe Ihrer Postanschrift und Telefonnummer über das Kontaktformular nehmen wir zeitnah Kontakt mit Ihnen auf und stehen Ihnen für eine Besichtigung oder eine Beratung gern zur Verfügung.

 

Alle Angaben sind ohne Gewähr und basieren ausschließlich auf Informationen, die uns von unserem Auftraggeber zur Verfügung gestellt wurden. Die BIRNBAUM Immobilien GmbH übernimmt keine Gewähr für die Vollständigkeit, Richtigkeit und Aktualität der hier gemachten Angaben.


Ansicht
Ausblick
Eingangsbereich
Raum 1
Raum 2
Aufenthaltsraum
Küche
Flur hinten
WC
WC
Ansicht
Grundriss OG
Ausblick
Mikrolage
Makrolage
Energieskala
Kontaktanfragecontact-btn
Kontaktanfragecontact-btn