Wohn- oder Ferienhaus in ländlicher Ortslage
Beschreibung
Das Objekt ist in der Orstlage eingebettet in umliegende Grundstücke mit Einfamilienhäusern. Die Umgebung bietet zahlreiche Möglichkeiten der Freizeitgestaltung für Naturliebhaber und Ruhesuchende, u.a. in den weitläufigen Wäldern und seiner Nähe zur Ostsee (Greifswalder Bodden).
Bei dem Objekt handelt sich um ein kleineres, in Massiv- und Holzbauweise errichtetes und teilweise unterkellertes Wohnhaus, welches sich für dauerhaftes Wohnen eines 1-2 Personenhaushalt eignet, aber sich auch als Ferien- oder Wochenendhaus für Familien mit Kindern anbietet.
Kaufpreis
€ 119.500,00
Überblick Objekt Nr. 01801
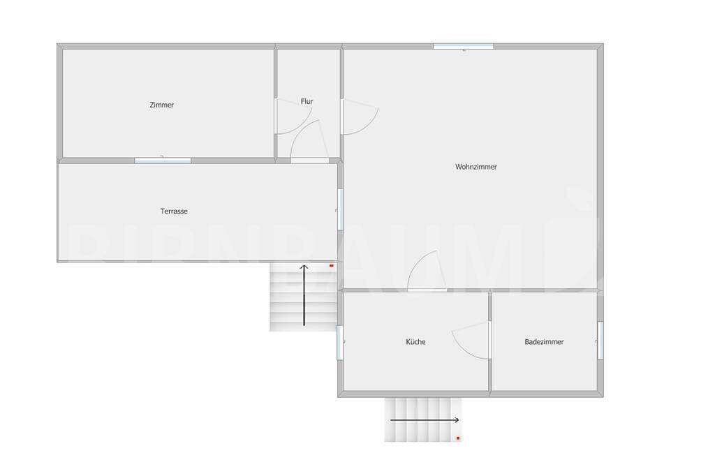
| Wohnfläche | 43,70 m² |
| Grundstücksgröße | 450 m² |
| Anzahl Stellplätze | 2 |
| Zustand | gepflegt |
| Status | frei |
| Frei ab | nach Vereinbarung |
| Zimmeranzahl | 2 |
| Anzahl Badezimmer | 1 |
| Heizungsart und Befeuerung | Ofen |
| Baujahr | 1992 |
| Anzahl Etagen | 1 |
| Einbauküche | ja |
| Kaufpreis | € 119.500,00 |
| Provision/Courtage | Bei Abschluss eines notariellen Kaufvertrags ist eine Provision |
Status
frei
Lage
Das Wohhaus, befindet sich in Dargelin, im Ortsteil Sestelin des Landkreises Vorpommern-Greifswald im Bundesland Mecklenburg-Vorpommern. Die Hansestadt Greifswald mit Ihren Einkaufszentren, zahlreichen kulturellen Einrichtungen sowie der Universitätsmedizin ist in nur 12 km Entfernung zu erreichen. Sestelin ist darüber hinaus auch im Fernverkehr günstig gelegen und nur 13 km entfernt von einer Autobahnauffahrt der A 20 die in Richtung Stettin, Berlin und Hamburg führt.
Ausstattung
Vor dem Eingang des Hauses befindet sich eine kleine überdachte Terrasse (Loggia) über die man in das Haus gelangt. Vom Flurbereich ausgehend befindet sich linker Hand das kleine Schlaf- und/oder Arbeitszimmer und rechter Hand das Wohnzimmer über das auch die Küche und das Bad zu erreichen sind.
Über eine überdachte Außentreppe ist das Kellergeschoss zu erreichen. Hier befindet sich die Elektroanlage und ausreichend Stau- bzw. Abstellraum.
Im Kaufpreis enthalten ist die teilweise Möblierung des Hauses, die bei Übernahme im Objekt verbleibt.
Sonstiges
Wir bedanken uns für Ihr Interesse an der angebotenen Immobilie.
Nach Bekanntgabe Ihrer Postanschrift und Telefonnummer über das Kontaktformular senden wir Ihnen gern weitere Informationen mit dem ausführlichen Exposé zu und stehen Ihnen für eine Besichtigung oder eine Beratung gern zur Verfügung.
Ein Maklervertrag mit uns kommt durch schriftliche Vereinbarung oder durch die Inanspruchnahme unserer Maklertätigkeit auf Basis des Objekt-Exposés und unserer AGB zustande. Unsere Maklerprovision ist mit Abschluss eines Kaufvertrages verdient und fällig.
Alle Angaben sind ohne Gewähr und basieren ausschließlich auf Informationen, die uns von unserem Auftraggeber zur Verfügung gestellt wurden. Die BIRNBAUM Immobilien GmbH übernimmt keine Gewähr für die Vollständigkeit, Richtigkeit und Aktualität der hier gemachten Angaben.














